Kapitalanlage oder Eigennutzung – Mehrfamilienhaus mit genehmigtem Ausbaupotenzial
66663 Merzig / Brotdorf, Mehrfamilienhaus zum Kauf
Kontaktdaten
-
FirmaImmodez GmbH
-
AdresseWaltherstraße 80
51069 Köln / Dellbrück -
E-Mail Zentraleinfo@immodez.com
-
Tel. Zentrale004922195930143
-
Fax004922195930146
Objektdaten
-
Objekt ID184
-
Objekttypen
-
AdresseHausbacher Straße 14
66663 Merzig / Brotdorf -
Etagenanzahl im Haus2
-
Wohnfläche ca.162 m²
-
Grundstücksfläche ca.774 m²
-
Nutzfläche ca.140 m²
-
Zimmer9
-
Schlafzimmer5
-
Badezimmer3
-
Terrassen1
-
BefeuerungElektroheizung, Ofenheizung
-
UmgebungGrundschule: 0,6 km
Realschule: 5,4 km
Gymnasium: 3,9 km
-
Baujahr1950
-
ZustandRenovierungsbedürftig
-
BauweiseMassiv
-
Verfügbar abSofort
-
StellplätzeAnzahl: 2 Freiplatz: 2
-
Kaufpreis199.000 EUR
Ausstattung / Merkmale
- Einliegerwohnung
- Elektroheizung
- Massivbauweise
- Ofenheizung
- Terrasse
Energiebedarfsausweis
-
Gültig bis14.06.2029
-
Baujahr lt. Energieausweis1950
-
PrimärenergieträgerELEKTRO
-
EnergieeffizienzklasseE
-
Endenergiebedarf149.80 kWh/(m²·a)
-
Endenergiebedarf:
149.80 kWh/(m²·a)A+ A B C D E F G H0 25 50 75 100 125 150 175 200 225 250+
Objektbeschreibung
Beschreibung
Willkommen zu einer seltenen Gelegenheit! Dieses Mehrfamilienhaus bietet nicht nur eine solide Grundlage für Kapitalanleger oder Eigennutzer, sondern auch eine bereits genehmigte Baugenehmigung, die das volle Potenzial dieser Immobilie freilegt.
Objektbeschreibung
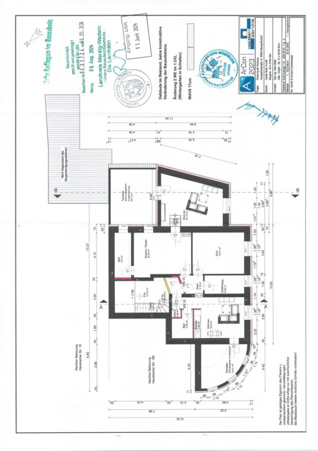
Das Gebäude steht auf einem großzügigen Grundstück von 744 m² und verfügt aktuell über eine Wohn- und Nutzfläche von ca. 302 m² zzgl. 74 m² Schuppen und Keller Bereich. Es ist vollständig leerstehend und daher flexibel nutzbar.
Derzeit ist das Haus in drei Einheiten unterteilt:
•Erdgeschoss:
•Gaststätte mit separatem Eingang, bestehend aus Gastraum, Küche und zwei WC-Anlagen (ca. 116 m² Nutzfläche)
•Werkstattschuppen (ca. 24 m² Nutzfläche)
•1. Obergeschoss:
•Wohnung mit 4 Zimmern, Küche, Tageslichtbad (mit Wanne und Dusche), Balkon und Terrasse (ca. 96 m² Wohnfläche)
•Dachgeschoss:
•Wohnung mit 3 Zimmern, Küche und Duschbad (ca. 66 m² Wohnfläche)
Zusätzlich verfügt die Immobilie über ca. zwei Außenstellplätze, einen Schuppen und einen Werkraum, die das Nutzungsspektrum erweitern.
Das Besondere: Genehmigter Ausbau in sechs Wohneinheiten
Eine Baugenehmigung liegt bereits vor, die die Umwandlung des Gebäudes in ein Mehrfamilienhaus mit sechs Wohneinheiten ermöglicht. Dieses Konzept bietet enormes Entwicklungspotenzial und steigert den langfristigen Wert der Immobilie erheblich.
Geplant ist eine sinnvolle Neustrukturierung der Flächen:
1.Aufteilung in sechs separate Wohnungen:
•Flexible Grundrisse mit moderner Wohnraumgestaltung
•Schaffung von attraktiven Einheiten für Singles, Paare oder kleine Familien
2.Optimierte Flächennutzung:
•Ausnutzung der bestehenden Strukturen zur Maximierung der Wohnfläche
•Separate Eingänge für alle Einheiten für hohen Wohnkomfort
3.Erschließung und Anschlüsse:
•Gasanschluss bereits vorhanden
•Moderne Heiz- und Versorgungstechnik im Zuge der Umbaumaßnahmen leicht umsetzbar
Diese Erweiterung bietet Ihnen eine lukrative Möglichkeit, sowohl die Vermietbarkeit als auch die Rendite deutlich zu steigern.
Einsatzmöglichkeiten
Die Immobilie ist vielseitig nutzbar:
•Kapitalanlage: Nach dem Ausbau in sechs Wohneinheiten profitieren Sie von einer attraktiven Rendite durch Vermietung.
•Eigennutzung: Nutzen Sie eine oder mehrere Einheiten selbst und generieren Sie gleichzeitig Einnahmen durch die Vermietung der übrigen Wohnungen.
•Gewerbliche Nutzung: Alternativ bietet die bestehende Gaststätte im Erdgeschoss auch Raum für eine Fortführung des gewerblichen Betriebs.
Wohn- und Nutzflächen im Überblick
•Bestehende Wohnfläche: 162 m²
•Bestehende Nutzfläche: 140 m²
•Gesamt: 302 m²
Nach dem Umbau in sechs Wohneinheiten kann die Wohnfläche auf 344,31 m² signifikant erhöht werden, wodurch das Objekt noch attraktiver für Investoren wird.
Zusammenfassung
Dieses Mehrfamilienhaus vereint flexible Nutzungsmöglichkeiten, ein großzügiges Grundstück und vor allem ein bereits genehmigtes Ausbaukonzept. Mit der Umnutzung in sechs Wohneinheiten sind Sie ideal aufgestellt, um von der steigenden Nachfrage nach Wohnraum zu profitieren.
Jetzt handeln! Lassen Sie sich diese einzigartige Gelegenheit nicht entgehen und kontaktieren Sie uns für weitere Informationen oder zur Vereinbarung eines Besichtigungstermins. Nutzen Sie die Chance, aus Potenzial echten Wert zu schaffen!
Ausstattung
Dieses unterkellerte Mehrfamilienhaus überzeugt durch seine vielseitigen Nutzungsmöglichkeiten und seine solide Grundausstattung. Die Immobilie bietet sowohl Bestandseinheiten mit großzügigen Wohnflächen als auch Ausbaupotenzial für weitere Nutzungskonzepte.
Erdgeschoss – Gaststätte
•Gastraum mit separatem Eingang
•Küche
•Zwei getrennte WC-Anlagen
•Nutzfläche: ca. 116 m²
•Flexible Nutzung: Die Umwandlung der Gaststätte in Wohn- oder Gewerberaum ist möglich; hierzu liegen bereits genehmigte Pläne vor.
1. Obergeschoss – Wohnung
•4 Zimmer
•Küche
•Terrasse und Balkon
•Tageslichtbad mit Badewanne und Dusche
•Wohnfläche: ca. 96 m²
Dachgeschoss – Wohnung
•3 Zimmer
•Küche mit Einbauküche (EBK)
•Tageslichtbad mit Dusche
•Wohnfläche: ca. 66 m²
Technische Ausstattung und Baujahr
•Fenster: Doppelverglaste Fenster aus Aluminium und Holz, Baujahr 1985
•Heizung:
•Öl-Einzelöfen in den Wohnbereichen
•Elektro-Nachtspeicherheizung im Erdgeschoss
•Gasanschluss: Bereits im Haus vorhanden, ermöglicht eine einfache Umstellung auf eine zentrale Gasheizung
Außenbereich
•2 Pkw-Freiplätze bieten ausreichend Stellfläche für Bewohner oder Besucher.
•2 Schuppen auf dem Grundstück bieten zusätzliche Abstellmöglichkeiten für Werkzeuge, Gartengeräte oder Fahrräder.
Zusammenfassung der Ausstattung
Das Objekt ist in einem gepflegten Zustand und bietet dank solider Bausubstanz und moderner Fenster eine gute Grundlage für weitere Nutzungskonzepte. Mit den bereits genehmigten Umbaumaßnahmen und der vorhandenen Infrastruktur (z. B. Gasanschluss) ist die Immobilie bereit für eine effiziente Modernisierung und Umgestaltung nach Ihren individuellen Vorstellungen.
Nutzen Sie das vorhandene Potenzial und profitieren Sie von der flexiblen Ausstattung dieses Mehrfamilienhauses – ideal für Kapitalanleger oder Eigennutzer!
Sonstige Informationen
Sie haben Interesse an einer Innenbesichtigung!? Nehmen Sie Kontakt zu uns auf - gern vereinbaren wir einen Termin für Sie!
Die angegebenen Informationen sowie jegliche Objektunterlagen sind ohne Gewähr und basieren ausschließlich auf Eigentümerangaben. Für die Richtigkeit, Aktualität und Vollständigkeit übernehmen wir keine Gewähr. Zwischenvermarktung bleibt vorbehalten. Wir behalten uns vor, bei Weitergabe unseres Exposés an Dritte Provisions- bzw. Schadenersatzansprüche geltend zu machen. Wir weisen auf unsere Allgemeinen Geschäftsbedingungen der Immodez GmbH hin, diese finden Sie ausführlich auf unserer Internetseite www.immodez.com.
Lage
Das Mehrfamilienhaus befindet sich in einer der begehrtesten Wohnlagen von Brotdorf, einem charmanten Ortsteil der Kreisstadt Merzig im Saarland. Brotdorf zeichnet sich durch seine ruhige, familienfreundliche Atmosphäre und seine naturnahe Umgebung aus. Hier finden Bewohner eine perfekte Balance zwischen entspanntem Landleben und der Nähe zu urbaner Infrastruktur.
Direkte Umgebung
Die Hausbacher Straße selbst ist geprägt von einer gepflegten Nachbarschaft mit Einfamilien- und Mehrfamilienhäusern. Die Straße bietet eine ruhige Wohnatmosphäre, da sie vorwiegend von Anwohnern genutzt wird. Kleine Gärten und Grünflächen schaffen eine harmonische Umgebung, die insbesondere Familien und Ruhesuchende anspricht. Gleichzeitig sorgt die zentrale Lage innerhalb von Brotdorf für eine optimale Anbindung an die wichtigsten Einrichtungen und Dienstleistungen des täglichen Lebens.
Innerhalb weniger Minuten sind Bäckereien, Lebensmittelgeschäfte, Ärzte, Apotheken und Banken erreichbar. Brotdorf verfügt zudem über einen Kindergarten und eine Grundschule, die den Ort besonders für Familien mit Kindern attraktiv machen.
Verkehrsanbindung
Die Verkehrsanbindung ist hervorragend:
•Straßenanbindung: Über die B51 und die A8 ist die Hausbacher Straße schnell mit den umliegenden Städten wie Merzig, Saarbrücken und Trier verbunden.
•Öffentlicher Nahverkehr: Bushaltestellen in der Nähe bieten regelmäßige Verbindungen in das Merziger Stadtzentrum sowie in die umliegenden Gemeinden.
•Bahn: Der Bahnhof in Merzig bietet Anschluss an das regionale und überregionale Bahnnetz, sodass auch Pendler die Lage schätzen.
Freizeit und Erholung
Brotdorf ist ein Paradies für Naturliebhaber. In unmittelbarer Nähe liegt der Naturpark Saar-Hunsrück, der mit zahlreichen Wander- und Radwegen sowie idyllischen Aussichten lockt. Besonders beliebt ist die „Saarschleife“, eines der bekanntesten Wahrzeichen des Saarlands, die sich in kurzer Distanz befindet.
Für Freizeitaktivitäten bieten sich zudem das Merziger Schwimmbad „Das Bad“, der Wolfspark Werner Freund oder die zahlreichen Weinberge der Moselregion an. Sportvereine, Reitmöglichkeiten und Golfplätze in der Umgebung runden das vielfältige Freizeitangebot ab.
Wirtschafts- und Pendlerlage
Die zentrale Lage von Brotdorf innerhalb des Saarlands macht den Ort auch für Berufspendler interessant. Die Landeshauptstadt Saarbrücken ist in etwa 40 Minuten erreichbar, ebenso wie Luxemburg und Trier. Auch die Industrie- und Dienstleistungsstandorte der Region, wie Dillingen oder Völklingen, sind schnell zugänglich.
Zusammenfassung
Die Lage des Mehrfamilienhauses in der Hausbacher Straße 14 vereint eine ruhige, naturnahe Wohnqualität mit einer ausgezeichneten Infrastruktur und vielfältigen Freizeitmöglichkeiten. Diese Kombination macht das Objekt sowohl für Eigennutzer als auch für Kapitalanleger besonders attraktiv. Egal, ob zur Eigennutzung oder als Investition: Diese Immobilie in Brotdorf bietet Lebensqualität und Werthaltigkeit an einem gefragten Standort.
